Tip

Građevinsko zemljište Peroj – parcela br. 12

Zemljište

Vodnjan, Peroj

185.000

Građevinsko zemljište Peroj – parcela br. 12

Zemljište: građevinsko stambeno

Vodnjan, Peroj

Značajke

Površina parcele
520 m²
Orijentacija
Zapad
Pogled na more
Udaljenost od mora
700 m

Glavne značajke

  • garancija za dozvolu
  • top lokacija
  • pogled na more sa 1. kata
  • voda, struja i kanalizacija
Podtip

Građevinsko stambeno

Orijentacija

Zapad

Cijena po kvadratu

356 €/m2

Opis nekretnine

U mirnom dijelu Peroja, svega nekoliko minuta od mora, nalazi se građevinsko zemljište koje nudi više od lokacije – nudi sigurnost, jasnoću i spremnost za gradnju. Riječ je o dijelu pomno planiranog naselja s kompletnom infrastrukturom i definiranim arhitektonskim standardima. Ovdje znate točno što kupujete i što se gradi oko vas.

Nema nepoznanica, nema papirologije koju morate rješavati mjesecima – sve je već pripremljeno.

Pripremljeno do zadnjeg detalja

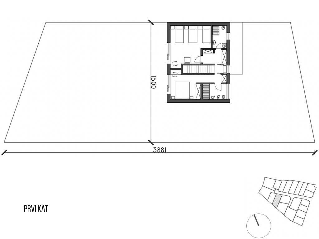
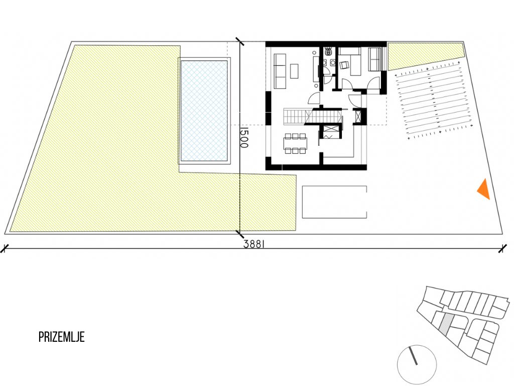
  • Idejni projekt kuće (prizemnica ili katnica)
  • Mogućnost prilagodbe: bazen, veličina, raspored
  • Završni dizajn fasade i boja definiran – arhitektonska usklađenost cijelog naselja
  • Dozvoljena gradnja: podrum + prizemlje + kat, svi objekti s kosim krovovima – sklad s mediteranskim stilom

Infrastruktura već na parceli – uključena u cijenu

  • Voda (priključak na parceli)
  • Struja (13 kW, već plaćeno)
  • Kanalizacija
  • Telefonski i internetski priključak
  • Asfaltirani pristup + javna rasvjeta

Više ne morate razmišljati o priključcima – sve je spremno.

Lokacija koja nudi ravnotežu

Peroj je poznat po svojoj nepretencioznoj atmosferi i autentičnim plažama koje nisu pretrpane. Lungo mare vas vodi sve do Fažane i Pule, a u blizini je i Nacionalni park Brijuni. Idealno za one koji žele mir, ali ne i izolaciju.

Pametna kupnja s dugoročnim potencijalom

  • Masterplan naselja – sve parcele dio su promišljenog urbanističkog koncepta
  • Nema višestambenih zgrada – samo kuće s 1–2 jedinice
  • Mogućnost spajanja više parcela za veći projekt
  • Mogućnost vlastitog bunara (25 m dubine)

Kupujete zemljište s jasnim pravilima, definiranim projektom i svim dozvolama – što znači da možete početi s gradnjom odmah, bez gubljenja vremena i novca na dodatne papire.

Pogledajte masterplan naselja na sljedećem linku: [MASTERPLAN – otvori ovdje]
Pregled dostupnih parcela, cijena i veličina pronađite ovdje: [REZERVACIJE I PRODAJA – pogledaj ovdje]

Za sve dodatne informacije, planiranje obilaska ili konzultacije – stojimo vam na raspolaganju.

Idi na ovu lokaciju

Dodatne značajke
  • blizina plaže
  • pogled na more sa 1. kata

  • struja
  • gradski vodovod
  • kanalizacija
  • asfalt do nekretnine
  • aktivna telefonska linija
  • javna rasvjeta u ulici
  • osiguran pristupni put do nekretnine
  • nazivna snaga struje: 13 kw

  • Garantirana građevinska dozvola
  • Zemljišne knjige
  • Namjena zemljišta
  • Lokacijska Informacija
  • Tip vlasništva: Suvlasništvo
  • Tip vlasnika: Tvrtka

  • Cijena: 185.000 Є
  • Cijena po kvadratu: 356 Є
  • Porez na promet nekretnina: 3 %
  • Agencijska provizija: 3 % + PDV
Oglas objavljen: 22.04.2025. Oglas zadnji put uređen: 10.11.2025. Pogledi: 4.384
Agent
Aljoša Vučetić

Agent

aljosa@maris.hr

+385 98 1900 688


Pošalji upit

Obavijestite me ako se cijena promijeni!

Unosom e-mail adrese dajete pristanak da vas Maris kontaktira ako se cijena ove nekretnine promijeni.

* Vrijedi samo za nekretninu koju trenutno pregledavate

Istraži Regija Pula

Ližnjan - Marčana - Medulin - Pula - Vodnjan
67 nekretnina počevši od 80.000€
Saznajte više

Slične nekretnine

Tip
ID 2602
Zemljište, m2
190.000
Marčana
  • 3970 m²
  • Jug
  • 9.1 km
Tip
ID 2597
Zemljište, m2
220.000
Vodnjan
  • 537 m²
  • Zapad
  • 900 m
Tip
ID 2587
Zemljište, m2
170.000
Vodnjan
  • 469 m²
  • Zapad
  • 700 m