Type

Land Ideal for an Apartment Complex or a Family Home

Land

Pula, Veli Vrh

100.000

Land Ideal for an Apartment Complex or a Family Home

Land: building land

Pula, Veli Vrh

Features

Land area
502 m²
Orientation
Southwest
Sea distance
4.5 km

Key features

  • slightly elevated terrain
  • building permits included
  • quiet area
  • excellent business investment
Subtype

Building land

Condition

Fenced plot with 3 sides

Orientation

Southwest

Price per square meter

199 €/m2

Real Estate Description

Looking for Your Place in the Sun? Your search ends here.

This 502m2 Land Plot in the Suburban area of Pula offers you endless opportunities for starting a new life!

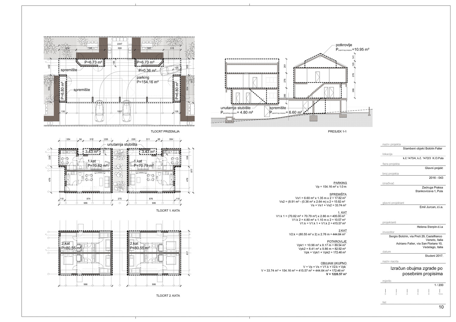
If you’re interested in creating your Future Home, the planned project consists of a living room, kitchen, dining area, and toilet on the first floor, while the second floor has 2 bedrooms & a bathroom.
The area has all the basics: schools, shops, post office, doctor’s office, a restaurant, and a playground. You can enjoy your new home while the kids play outside and be completely carefree!

Easily bored? The Pula airport is just 9km away, and the nearest highway entrance is 7km away, so pack your bags & get ready for a spontaneous weekend getaway!

The alternative is an Apartment Building with 4 units of 76m2 each. The ground floor would be a parking and private garden area, while the first & second floor would be residential.

Whichever option you choose, you can be sure you’ll get a Great Return on your investment; there are plans on building a modern Nautical Centre with two marinas, which will enrich the whole neighbourhood & add Value to your property.

And if you can’t choose, why not have the best of both worlds? You can live in one of the apartments, and rent the other ones as an extra source of income!

If you can’t wait to click on another “see more”, grab this opportunity now. Send us an inquiry at info@maris.hr, or call us +385 98 1900 688 to organise your Private Tour in person or via Zoom.

The nearest beaches are 6 km away and the marina is 3 km away. Shops and bakeries are a maximum of 200 m away, the nearest supermarket is 4 km away, restaurant Farabuto 6 km, Vodnjanka  5 km, Boccaporta 12 km, Bistro Alighieri 5 km. Pula Airport is 9 km away, Venice Airport is 270 km away, and the nearest motorway entrance is 7 km away. Distance from cities: Rovinj 35 km, Poreč 59 km, Zagreb 269 km, Vienna 586 km, Munich 603 km.

 

Do you know all the information? In the video, find out what you need to know before buying construction land - VIDEO

Drive to this location

Additional content
  • town view

  • possibility of connection to the water supply and electricity
  • has no city sewage
  • Access path provided

  • Building permit guaranteed
  • Land registry
  • Ownership type: Co-ownership
  • Owner type: Private owner

  • Price: 100.000 Є
  • Price of square meter: 199 Є
  • Real estate transfer tax: 3 %
  • Agency fee: 3 % + PDV
Listing published: 08.10.2021. Listing last modified: 09.05.2025. Views: 11.914

Explore Pula Region

Ližnjan - Marčana - Medulin - Pula - Vodnjan
68 properties starting at 80.000€
Find out more

Similar Listings

Type
ID 2558
Land, m2
105.000
Vodnjan
  • 521 m²
  • Southwest
  • 1.9 km
Type
ID 2534
Land, m2
115.000
Medulin
  • 510 m²
  • South
  • 900 m
Type
ID 2291
Land, m2
115.000
Vodnjan
  • 907 m²
  • Southeast
  • 10.0 km